Ana Karen Molina
Detalles
Actualizado 23 de diciembre de 2025
Código:
CVF617
Precio:
$425,800
Tipo:
Casa
Estado:
Compra
Dormitorios:
3
Baño:
3.5
Mascotas:
SI
Parqueo:
2
Metros frente:
8.06 m
Metros fondo:
34.26 m
Área total terreno:
276.24 m
Varas cuadradas:
395.24 v²
Casa en construcción en venta en Antigua Guatemala, Residencial Santa Delfina
UBICACIÓN:
Residencial Santa Delfina se proyecta como una joya inmobiliaria en San Pedro Las Huertas, ofreciendo un refugio de paz a tan solo 10 minutos del vibrante centro de Antigua Guatemala. Vivir en este entorno privilegiado significa despertar con vistas imponentes a los volcanes en un clima inigualable.
La ubicación es estratégica para el día a día, situándose a solo 5 minutos del Centro Comercial El Parador de Santa Clara, lo que garantiza acceso inmediato a supermercado La Torre, servicios bancarios, farmacias y una variada oferta gastronómica.
Es el equilibrio perfecto para quienes buscan la serenidad de un hogar privado sin renunciar a la proximidad de todos los servicios esenciales.
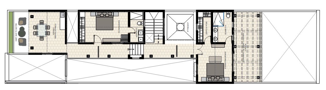
DISTRIBUCIÓN:
Primer nivel:
- Terraza techada (mirador)
- Sala
- Comedor
- Cocina
- Servicio Sanitario para visitas
- Lavandería
- Dormitorio 1 con baño privado
- Jardín con pozo de luz
- Jardines
- 2 Parqueos
Segundo nivel:
Dormitorio Master Baño privado en Master Walk-in Closet Master Terraza con pérgola Dormitorio 2 con baño privado
Terraza:
- Terraza techada con artesón
AMENIDADES:
Santa Delfina es reconocida por sus excelentes amenidades, que pocas veces se encuentran todas en un mismo lugar. Nos permite disfrutar de un estilo de vida activo y relajante diseñado para mejorar la salud y la convivencia familiar:
- Gimnasio equipado
- Cancha de tenis
- Piscina semi-olímpica con vistas espectaculares
- Minigolf
- Cancha de fútbol
- Mesa de ping pong
- SPA con sauna y área de masajes
- Bar y áreas sociales
- Juegos para niños.
- Lindas áreas verdes ideales para eventos, pequeños parques internos y espacios pensados para caminar o leer rodeado de naturaleza.
- Todo esto se complementa con parqueo para visitas y la tranquilidad absoluta que ofrece una garita de seguridad con vigilancia las 24 horas.
DETALLES CONSTRUCTIVOS:
Medidas:
- Terreno: 8.06 m de frente por 34.26 m de fondo. Total: 276.24 m² / 395.24 v².
- Construcción: 302.56 m²
- Corredores con terraza española
- Pilares de madera
- Ventanería PVC imitación madera
- Gabinetes en cocina
Esta residencia se proyecta como un santuario de luz y sofisticación, donde el diseño de concepto abierto integrará perfectamente la sala, comedor y cocina en un amplio núcleo social, creando el escenario ideal para disfrutar de momentos inolvidables en familia y con amigos.
Gracias a un jardín con pozo de luz y ventanales estratégicos, la claridad natural bañará cada rincón, conectando el interior con los jardines y el mirador del primer nivel.
En el área privada, la suite máster destacará por su exclusividad con walk-in closet y acceso a una terraza con pérgola. El broche de oro de la construcción será su terraza superior con artesón, una pieza de carpintería tradicional que aportará calidez y un carácter atemporal a este hogar diseñado para trascender.
IMPUESTOS Y GASTOS:
Cuota de IUSI trimestral: USD$299 / GTQ2,300 Cuota de Mantenimiento: USD$117 / GTQ900 (Incluye agua, mantenimiento y recolección de basura)
Adquirir esta propiedad significa asegurar un patrimonio en un proyecto que fusiona magistralmente la estética colonial con una visión de inversión inteligente.
Gracias a su ubicación en un polo de desarrollo de alta plusvalía, esta casa representa un activo de alto rendimiento, ideal tanto para una residencia familiar sofisticada como para un modelo de rentas de lujo premium, siempre respaldado por la exclusividad y seguridad que solo Santa Delfina puede brindar.
«Da hoy el primer paso hacia la vida que deseas…»
Si esta casa encaja con lo que ha estado buscando, no espere a que alguien más la tome. Los proyectos con una ubicación tan estratégica, acabados de alta gama y amenidades de primer nivel en el sector de San Pedro Las Huertas tienen una alta demanda y plusvalía garantizada.
Puedes ver otra opción en venta disponible en SANTA DELFINA en el siguiente link:
https://quick-realestate.com/property/casa-delfina/
Con gusto te mostraremos el proyecto, resolveremos todas tus dudas y te ayudaremos a asegurar el espacio ideal para construir el hogar que tu familia merece.
Contáctanos al +502 7832-6600 o al +502 7720-3501 para programar una visita personalizada.
Dirección
Abrir en Google Maps
Dirección
Residencial Santa Delfina
Ciudad
Antigua Guatemala
Departamento
Sacatepéquez
Características
Anterior
Propiedad
Siguiente
Propiedad
