Luisa Fernanda Molina
Detalles
Actualizado 9 de febrero de 2026
Código:
CVF628
Precio:
$610,000
Tipo:
Casa
Estado:
Compra
Dormitorios:
4
Baño:
4.5
Cuarto de servicio:
1
Mascotas:
SI
Parqueo:
2
Metros frente:
24.00 m
Metros fondo:
20.00 m
Área total terreno:
480.00 m
Metros cuadrados de construcción:
300.00 m²
Varas cuadradas:
653 v²
CASA EN CONSTRUCCIÓN EN VENTA CON PISCINA, EN SANTA CATARINA BOBADILLA
SANTA CATARINA BOBADILLA
UBICACIÓN
Esta casa esta ubicada en Condominio Villas de Santa Catarina, en la encantadora aldea de Santa Catarina Bobadilla. Se ubica a 4 minutos de la Iglesia El Calvario y a 10 minutos del centro de Antigua Guatemala. El residencial nos ofrece un entorno de paz y seguridad rodeada de un ambiente natural que nos regala vistas despejadas hacia los volcanes. Cerca encontraremos la tranquilidad de una aldea tradicional, con la conveniencia de tener los mejores servicios de la ciudad a la mano.
DISTRIBUCIÓN
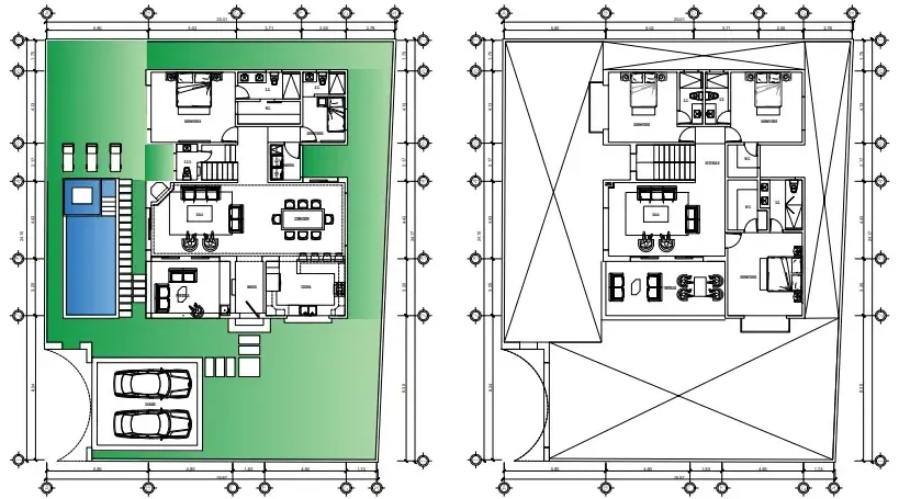
La casa cuenta con una distribución en dos niveles.
Primer Nivel:
- Garaje para 2 vehículos
- Sala principal con chimenea y comedor en un concepto de espacio abierto
- Cocina con gabinetes y top de cuarzo, incluyendo área de desayunador
- Dormitorio con clóset y baño
- Baño de visitas
- Área de lavandería
- Cuarto de servicio con baño
- Pérgola techada que conecta con un amplio jardín exterior
Segundo Nivel:
- Sala familiar
- Dormitorio principal con balcón privado, amplio walk-in closet y baño
- 2 dormitorios secundarios adicionales, cada uno con clóset y baño
- Amplia terraza con vistas espectaculares hacia los volcanes
AMENIDADES
El residencial se enfoca en brindar un estilo de vida privado y seguro, donde la tranquilidad es la protagonista. En esta casa, las amenidades se disfrutan de forma totalmente privada dentro de tu propio hogar.
- Amplias áreas verdes
- Calles anchas empedradas
- Cableado subterráneo
- Hermosas vistas al valle y el volcán de Agua
DETALLES CONSTRUCTIVOS
Esta casa se sitúa en un terreno de 24m de frente por 20m de fondo, sumando un total de 480m² (653 v²) de terreno y 300m² de construcción.
Tecnología y confort: La casa está habilitada para la automatización de luces, instalación de aire acondicionado y paneles solares.
Bóveda de ladrillo: Techo de cañón en el pasillo principal que realza el carácter artesanal.
Integración total: puertas corredizas de piso a techo que permiten fusionar la sala y el comedor con el área del jardín y la pérgola.
Acabados premium: Cocina moderna con top de cuarzo y baños con acabados contemporáneos.
Iluminación natural: Ventanería de gran formato y tragaluces estratégicos que inundan de luz natural todos los espacios.
GASTOS E IMPUESTOS
- Inversión con piscina: Disfrutaremos de la opción de personalizar este hogar añadiendo una piscina privada por un valor adicional de $45,000.
- Cuota de mantenimiento: US$70 - GTQ550 mensuales (incluye seguridad, garita y áreas comunes).
- IUSI Trimestral: US$884 - GTQ6,806
- Precio de la casa: US$610,000 + impuestos.
¿POR QUÉ ES UNA BUENA OPCIÓN PARA INVERTIR?
Invertir en esta casa en construcción es una decisión brillante por su ubicación en Santa Catarina Bobadilla, una zona de altísima demanda.
Su entrega en enero 2027 permite asegurar una plusvalía inmediata, convirtiéndola en una inversión sólida tanto para vivir como para el mercado de rentas exclusivas.
¿Estás listo para asegurar tu futuro en este paraíso privado y personalizar los acabados de tu nueva casa? ¡Contáctanos hoy mismo y agendemos tu cita a los teléfonos +502 7832-2660 o al +502 7720-3501!
Dirección
Abrir en Google Maps
Dirección
Condominio Villas Santa Catarina
Ciudad
Antigua Guatemala
Departamento
Sacatepéquez
Anterior
Propiedad
Siguiente
Propiedad

